Проект дома B-266
15 900 ₽
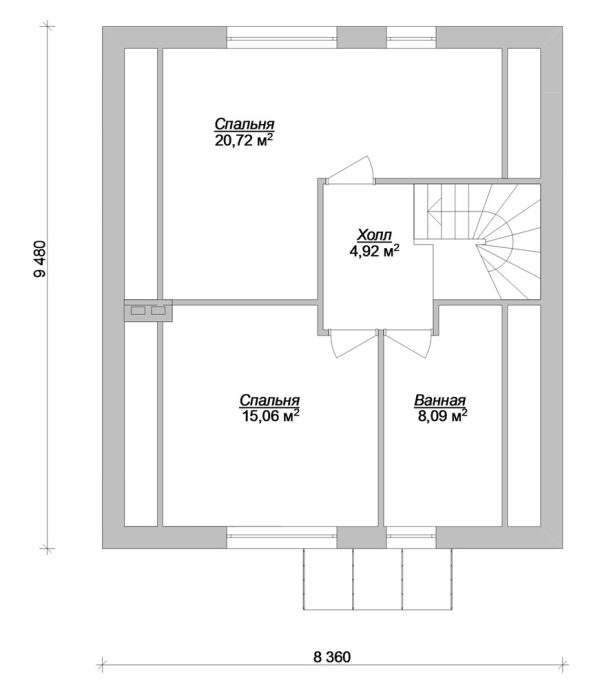
Общая площадь: 132,52 м2, с мансардой, 2 спальни, материал строительства: кирпич, дополнения: терраса.
- Описание
- Характеристики
- Состав проекта
Описание
С составом и примером проекта Вы можете ознакомиться в соответствующем разделе нашего магазина. Обращаем Ваше внимание на то, что проект не будет привязан к каким-либо строительным материалам, конструктиву или технологии возведения. Вы можете использовать строительные материалы, их комбинацию или технологию строительства, которая подходим Вашим интересам, бюджету и особенностям земельного участка.
Так же Вы можете вносить незначительные корректировки в проект самостоятельно, в процессе строительства. Например, переместить окно или дверь, сместить межкомнатную перегородку на нужное расстояние и т.д. Мы всё же рекомендуем перед этим прокунсультироваться с представителями строительной организации-непосредственного исполнителя работ или позвоните нам на горячую линию, или оставьте сообщение на сайте.
Все необходимые размеры для строительства дома указаны на планах, разрезах, фасадах и т.д. Этого будет достаточно квалифицированным строителям для составления сметы и дальнейшего строительства. Вам же данного проекта будет достаточно для получения всех необходимых разрешений на строительство, если наличие проекта потребует соответствующая организация.
Детали
| Гараж | |
|---|---|
| Количество спален | |
| Материалы | |
| Площадь, м2 | |
| Подвал | |
| Терраса | |
| Цокольный этаж | |
| Этажность |
Состав проекта, который Вы получите, оформляя покупку в нашем интернет-магазине, будет аналогичен описанию и примеру:















В зависимости от сложности проекта, его этажности, размера, набора помещений и т.д. состав проекта может несколько отличаться.









































