Проект дома D-081

Проект дома D-081

17 900 

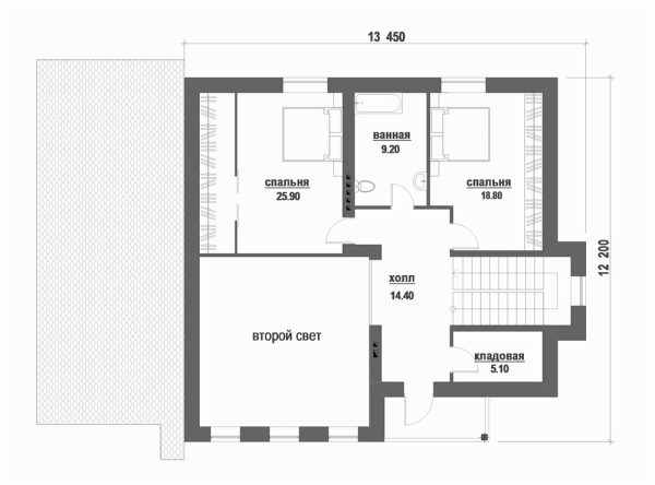
Общая площадь: 208,30 м2, с мансардой, 3 спальни, материал строительства: кирпич, дополнения: терраса.

Артикул: D-081 Категория:

Описание

С составом и примером проекта Вы можете ознакомиться в соответствующем разделе нашего магазина. Обращаем Ваше внимание на то, что проект не будет привязан к каким-либо строительным материалам, конструктиву или технологии возведения. Вы можете использовать строительные материалы, их комбинацию или технологию строительства, которая подходим Вашим интересам, бюджету и особенностям земельного участка.

Так же  Вы можете вносить незначительные корректировки в проект самостоятельно, в процессе строительства. Например, переместить окно или дверь, сместить межкомнатную перегородку на нужное расстояние и т.д. Мы всё же рекомендуем перед этим прокунсультироваться с представителями строительной организации-непосредственного исполнителя работ или позвоните нам на горячую линию, или оставьте сообщение на сайте.

Все необходимые размеры для строительства дома указаны на планах, разрезах, фасадах и т.д. Этого будет достаточно квалифицированным строителям для составления сметы и дальнейшего строительства. Вам же данного проекта будет достаточно для получения всех необходимых разрешений на строительство, если наличие проекта потребует соответствующая организация.

Детали

Гараж

Количество спален

Материалы

Площадь, м2

Подвал

Терраса

Цокольный этаж

Этажность

Состав проекта, который Вы получите, оформляя покупку в нашем интернет-магазине, будет аналогичен описанию и примеру:

1. План фундаментов/цокольного этажа.
2. Поэтажные планы.
3. Раскладка плит перекрытия (если дом перекрывается плитами).
4. План кровли.
5. Разрезы (один или два, по необходимости).
6. Фасады.
7. Фасады в цвете.
8. 3D-визуализация.

В зависимости от сложности проекта, его этажности, размера, набора помещений и т.д. состав проекта может несколько отличаться.

Вы только что добавили этот товар в корзину: